





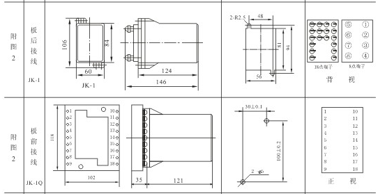
繼電器采用JK–1型殼體,其外形尺寸、背后端子及安裝開孔圖見附錄,背后端子接線圖見圖1。電源從端子○1與○13輸入.

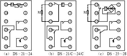
DS–20系列時間繼電器是帶有延時機構的吸入式電磁繼電器。其中DS–21~DS–24是短時帶電的時間繼電器;DS–21/C~DC–24/C是長期帶電的時間繼電器。DS–25~28是交流時間繼電器。
該繼電器具有一副瞬動轉換觸點,一副滑動主觸點和一副延時終止主觸點。
當電壓加在線圈兩端時,唧子(鐵心)克服塔形彈簧的反作用力被吸入,瞬動動合觸點閉合,動斷觸點斷開。同時延時機構開始啟動,經過一定的整定時間后,先閉合滑動主觸點,再經過一定時間后,閉合終止動合觸點從而得到所需延時。當線圈斷電時,在塔形彈簧作用下,使唧子和延時機構返回原位。從加電壓于線圈的瞬間起,到延時動合主觸點的閉合為止這段時間,可借移動靜觸點位置方法調整,并由指針在刻度盤上指出。
1. 各種型號繼電器主要技術數據列于表1中。
2. 繼電器的動作電壓對于DS–21~24不大于70%額定電壓;對于DS–21/C~24/C不大于75%
額定電壓。DS–25~28不大于85%額定電壓。
3.繼電器的返回電壓不低于5%額定電壓。
4.繼電器主觸點延時一致性不大于表2中的規定。
5.繼電器主觸點延時整定值誤差應符合表3規定。

6.熱穩定性:當環境溫度為40℃時,DS–21~DS–24繼電器的線圈耐受110%額定電壓歷時2分鐘,溫升不超過65℃;對于DS–25~28中380V繼電器線圈耐受110%額定電壓歷時1.5分鐘,溫升不超過65℃;對于DS–25~28中220V、127V、110V繼電器以及DS–21/C~DS–24/C繼電器的線圈長期耐受110%額定電壓,溫升不超過65℃。
7.在額定電壓下的功率消耗:對于DS–21~DS–24不大于10W;對于DS–25~28不大于35VA;對于DS–21/C~DS–24/C不大于7.5W。
8.觸點斷開容量
直流有感(τ=5ms)回路,U≤250V,I≤1A,主觸點和瞬動觸點為50W。
9.介質強度
繼電器各導電電路連在一起與外露的非帶電金屬部分及外殼之間,能承受2kV(有效值),50Hz的交流電壓歷時1min試驗,耐無絕緣擊穿或閃絡現象。
10.電壽命5×103次,機械壽命104次。
11.繼電器主觸點長期閉合電流5A,瞬動觸點長期閉合電流5A。
12.繼電器的重量約0.7kg。
